Modelo/nombre principal: Sistema de montaje fotovoltaico vertical de una sola fila
Materiales principales: acero al carbono galvanizado, aleación de aluminio, acero inoxidable
Rendimiento estructural:
Velocidad segura del viento: 26 m/s (personalizable)
Carga de nieve: 0,8 kN/m²
Dimensiones/ángulos clave:
Ángulo de inclinación de instalación: personalizable
Diámetro del cable de sujeción: 16–28 mm
Vida útil y garantía del diseño:
Vida útil del diseño: 25 años
Garantía: 5 años
Escenarios de aplicación principal: centrales fotovoltaicas montadas en tierra
Características principales: Alta adaptabilidad, parámetros materiales y estructurales personalizables según los requisitos del cliente
Categoría de parámetros: Sistema de montaje tipo armadura
Modelo/nombre principal: Sistema de armadura de cable flexible de tramo largo
Materiales principales: Estructura de acero, Hebra de acero pretensado
Rendimiento estructural:
Tramo único: 15–30 metros
Valor de estrés: 4–8 toneladas
Dimensiones/ángulos clave:
Altura de instalación: ≥4 metros
Diámetro del cable: 16–28 mm
Vida útil y garantía del diseño:
Vida útil del diseño: 25 años
Garantía: 5 años
Escenarios de aplicación principales: aplicaciones de gran alcance (p. ej., estacionamientos, plantas de tratamiento de aguas residuales)
Características principales: gran envergadura, requisitos de cimentación reducidos, diseño que ahorra acero
Categoría de parámetros: Sistema de montaje de trípode
Modelo/nombre principal: Soporte basculante plegable giratorio, soporte portátil para techo plano
Materiales principales: Aleación de aluminio, acero inoxidable 304
Rendimiento estructural:
Carga de viento: 20–60 m/s
Carga de nieve: 0,5–1,4 kN/m²
Dimensiones/ángulos clave:
Ángulo de inclinación máximo: hasta 60°
Múltiples especificaciones disponibles
Garantía: 5–10 años
Escenarios de aplicación principales: techos planos, vehículos recreativos, pequeños sistemas portátiles
Descripción
Imágenes detalladas
Contáctenos
1. Soporte tipo columna
Utiliza columnas verticales como soporte principal. Ya sea una gran central eléctrica montada en el suelo o un tejado comercial e industrial, siempre que el sitio sea relativamente plano, es la opción más clásica y ampliamente utilizada.
2. Soporte tipo armadura
La principal ventaja de los soportes tipo armadura radica en su excelente capacidad de gran envergadura y su eficiente tasa de utilización del material. Forma una viga reticular a través de unidades triangulares, que puede alcanzar una envergadura de más de diez metros con un menor uso de acero, reduciendo así significativamente el número de cimentaciones. Esta característica le permite manejar terrenos complejos como zanjas y depresiones con facilidad, y proporciona un espacio abierto y sin barreras para actividades agrícolas, pesqueras o paso mecánico debajo de él. Es una solución estructural ideal para la realización de proyectos compuestos “fotovoltaicos +”.
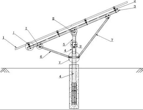
3. Trípode invertido
La principal ventaja del andamio triangular invertido radica en su incomparable rigidez tridimensional, estabilidad y excelente rendimiento de resistencia al viento y a la torsión. Mejora la viga única tradicional y la convierte en una estructura espacial triangular estable, que puede convertir la carga en una fuerza tridimensional más científica. Este diseño puede suprimir en gran medida las vibraciones inducidas por el viento, reducir eficazmente el riesgo de agrietamiento oculto de los componentes causado por la deformación del soporte y proporcionar el más alto nivel de garantía mecánica para el funcionamiento confiable a largo plazo de la central eléctrica. Es especialmente adecuado para zonas con fuertes vientos, escenarios costeros y proyectos que utilizan componentes de gran tamaño.

¡Podemos ofrecerle un plan satisfactorio!
Número de empleados
Espacio en el piso
Empresa de crédito
Zhejiang Kaibang New Energy Technology Co., Ltd. es una empresa de 16 años de antigüedad que se centra en la construcción de una plataforma de protección inteligente de investigación y desarrollo, producción, ventas, mantenimiento y servicio en una de las empresas de alta tecnología. En 2021, bajo la dirección de la nueva política. La empresa ha diseñado completamente el nuevo tablero energético. En la actualidad, nos dedicamos principalmente a la investigación y el desarrollo, fabricación y venta de soluciones personalizadas y equipos correspondientes para productos de estructuras integrales de acero con bajas emisiones de carbono en múltiples campos, incluidos sistemas de soporte fotovoltaico centralizados, sistemas de soporte fotovoltaico flexibles, sistemas de soporte fotovoltaico distribuido y almacenamiento de energía fotovoltaica.
2025-12-24 Noticias de la empresa
2025-12-24 Noticias de la empresa
2025-12-24 Noticias de la industria
2025-12-24 Noticias de la industria